青森市・平内町の不動産情報満載!賃貸アパートから、一戸建・売地等の売買情報まで物件多数掲載中!!
電話でのお問い合わせは… ℡017-762-7511
情報更新日:2026-05-26
| 所在地 | 間取 | 価格 | 建物延面積 | 敷地面積 |
|---|---|---|---|---|
| 青森県 青森市 中佃2丁目・新築デザイナーズコンパクト・プラス | 4LDK | 2,995万円 | 85.7㎡ | 150.97㎡ (公簿) |
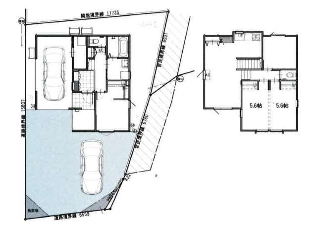
新築デザイナーズコンパクト4LDK オール電化 2階リビング 車庫1台青空2台駐車可 食器洗浄乾燥機付き 5月完成予定
本物件の内容や画像等は全て現況優先とさせていただきます。各画像は参考図となります。
![]() |
![]() |
| 交通機関 | バス 東佃徒歩4分 | ||
|---|---|---|---|
| 学区 | 佃小学校(0.46km)・佃中学校(0.58km) | ||
| 詳細間取 | 4LDK (1階:洋4.5帖×1、2階:洋5.6帖×2、2階:洋4.6帖×1、2階:LDK13帖) | ||
| 周辺施設 | 生協つくだ店:370m | ||
| その他費用 | 水道加入金:132,000円 | ||
| 総戸数 | 建物構造 | その他 (木造2×4工法) | |
| 築年月 | 令和8年5月 | 主要採光方向 | 南東 |
| 駐車場 | 敷地内 可 | 地勢 | 平坦 |
| 駐車場複数台 | 可2台まで | 土地権利 | 所有権 |
| 用途地域 | 第一種低層住居専用 | 国土法届 | 不要 |
| 取引態様 | 一般媒介 | 現況 | 未完成 |
| 引渡 | 2026/05/下旬 | 建ぺい率/容積率 | 60% / 150% |
| 地目 | 宅地 | 都市計画 | 市街化 |
| セットバック | 無 | 接道状況 | 角地(・南西側・間口15.8m・幅員5.2m、・南東側・間口6.5m・幅員4m) |
| 私道負担 | ─ / ─ | 建築確認番号 | 第0403号 |
| 法令上の制限 | |||
| 設備 | バス(有 シャワー有 追焚機能付 ) トイレ(洋式 独立 水洗 暖房便座 洗浄機能付) 上水道設備(公営) 下水道設備 給湯(電気) 洗面化粧台(独立)(シャワー付) IHヒーター TV付インターホン エアコン オール電化 下駄箱 洗濯機置場 システムキッチン 物置 ウォークインクローゼット 網戸 カーテンレール 照明器具 TVアンテナ 車庫 フローリング クローゼット 郵便受 デザイナーズ 電気自動車充電設備 トイレ2ヶ所 エアコン2台 省エネ電気温水器エコキュート 食器洗乾燥機 | ||
| 備考 | ●設計住宅性能評価書取得済住宅●車庫1台青空2台駐車可、外構コンクリート仕上げ●ベタ基礎工法で災害に強く、湿気・シロアリから建物を守ります●基礎断熱工法で高断熱を実現●電気自動車充電コンセント付●2×4工法(省令準耐火構造)につき火災保険料が在来工法の半額以下です●キレイを持続させるマイクロガード仕様の外壁●食器洗浄乾燥機付き●デザイナーズコンパクト住宅●2階の11.2帖は、壁で仕切ると独立した2部屋に、そのままだと広い1部屋として活用できます●引渡時品質2年保証。住宅瑕疵担保責任保険10年保証。シロアリ10年保証。地盤調査済&10年間地盤保証付き●一部住宅設備10年保証付き●災害に強い、独自の「非常時電源供給システム」を導入(長期メンテナンス保証付き)●住宅ローン控除対象。●フラット35S対応住宅●お支払例:住宅ローン、3000万円借り入れ、40年返済、月々約77,283円(ボーナス併用無し)●ZEH水準住宅●仲介手数料2%(施工系列販売会社)、弊社仲介手数料は無料です!● ※同業他社による客付け不可 | ||
| 取扱業者 |
(有)ベストハウジング 青森県知事免許(5)第3156号 青森県青森市青葉3丁目1番11号 TEL:017-762-7511 FAX:017-718-1503 (公社)全日本不動産協会会員 東北地区不動産公正取引協議会加盟事業者 |
||