青森市・平内町の不動産情報満載!賃貸アパートから、一戸建・売地等の売買情報まで物件多数掲載中!!
電話でのお問い合わせは… ℡017-762-7511
情報更新日:2025-11-13
| 所在地 | 間取 | 価格 | 建物延面積 | 敷地面積 |
|---|---|---|---|---|
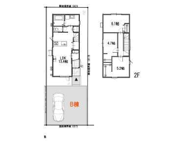
| 青森県 青森市 小柳1丁目・新築デザイナーズコンパクトB棟 | 3LDK | 2,395万円 | 76.67㎡ | 116.46㎡ (公簿) |
新築デザイナーズコンパクトB棟3LDK 青空2台駐車可 食洗機付き 11月完成予定
本物件の内容や画像等は全て現況優先とさせていただきます。各画像は参考図となります。
![]() |
![]() |
| 交通機関 | バス 袰懸団地徒歩7分 | ||
|---|---|---|---|
| 学区 | 小柳小学校(1km)・造道中学校(0.8km) | ||
| 詳細間取 | 3LDK (2階:洋6.1帖×1、2階:洋5.2帖×1、2階:洋4.7帖×1、1階:LDK13.4帖) | ||
| 周辺施設 | |||
| その他費用 | 水道加入金:132,000円 | ||
| 総戸数 | 建物構造 | その他 (木造2×4工法) | |
| 築年月 | 令和7年11月 | 主要採光方向 | 南 |
| 駐車場 | 敷地内 可 | 地勢 | 平坦 |
| 駐車場複数台 | 可2台まで | 土地権利 | 所有権 |
| 用途地域 | 第一種低層住居専用 | 国土法届 | 不要 |
| 取引態様 | 一般媒介 | 現況 | 未完成 |
| 引渡 | 2025/11/下旬 | 建ぺい率/容積率 | 60% / 150% |
| 地目 | 宅地 | 都市計画 | 市街化 |
| セットバック | 無 | 接道状況 | 一方(公道・南側・間口6.3m・幅員5.4m) |
| 私道負担 | ─ / ─ | 建築確認番号 | 第0103号 |
| 法令上の制限 | |||
| 設備 | バス(有 シャワー有 追焚機能付 給湯式) トイレ(洋式 独立 水洗 暖房便座 洗浄機能付) 上水道設備(公営) 下水道設備 給湯(ガス) 洗面化粧台(独立)(シャワー付) LPガス ガスコンロ(3口) TV付インターホン エアコン 下駄箱 洗濯機置場 システムキッチン ウォークインクローゼット 網戸 照明器具 TVアンテナ クローゼット 郵便受 デザイナーズ 電気自動車充電設備 ヒートポンプ式フル暖エアコン1台 食洗機 省エネ高効率ガス給湯器(エコジョーズ)はメンテナンス保証付 | ||
| 備考 | ●設計住宅性能評価書取得済住宅●青空2台駐車可、外構コンクリート仕上げ●ベタ基礎工法で災害に強く、湿気・シロアリから建物を守ります●基礎断熱工法で高断熱を実現●電気自動車充電コンセント付●2×4工法(省令準耐火構造)につき火災保険料が在来工法の半額以下です●キレイを持続させるマイクロガード仕様の外壁●デザイナーズコンパクト住宅●引渡時品質2年保証。住宅瑕疵担保責任保険10年保証。シロアリ10年保証。地盤調査済&10年間地盤保証付●一部住宅設備10年保証付●災害に強い、独自の「非常時電源供給システム」を導入(長期メンテナンス保証付)●食器洗乾燥機付●住宅ローン控除対象。●フラット35S対応住宅●ZEH水準住宅につき、子育てグリーン住宅支援事業40万円補助金対象●仲介手数料2%(施工系列販売会社)、弊社仲介手数料は無料です!● ※同業他社による客付け不可 | ||
| 取扱業者 |
(有)ベストハウジング 青森県知事免許(5)第3156号 青森県青森市青葉3丁目1番11号 TEL:017-762-7511 FAX:017-718-1503 (公社)全日本不動産協会会員 東北地区不動産公正取引協議会加盟事業者 |
||